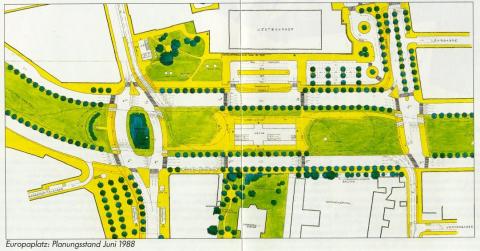
[W] Planung Gleislage Westbahnhof, 1988

Image
Tags
Dateigröße
185915
Breite
1081
Höhe
566

Noch was interessantes. Ab Wetbahnhof hätte die Tramway ursprünglich links
fahren sollen, was in vielen Bereichen bessere Haltestellenlagen ergeben
hätte. Lustigerweise scheint die heutige selten benützte Verbindungsschleife
hinter dem Obelisk ein "Restl" dieser Planung zu sein.

Gescheitert ist das soviel ich mich erinnere an der zweigleisigen
Stollgasse, die für den IV gesperrt worden wäre. Nachteilig wäre
möglicherweise auch die zweimalige Querung der Mariahilferstraße für die
Schleifenfahrt gewesen. Also, auch hier: die kleinsten Vorteile für den IV
haben Vorrang vor Nachteilen für den ÖV.

Harald A. Jahn
www.tramway.at

Antworten